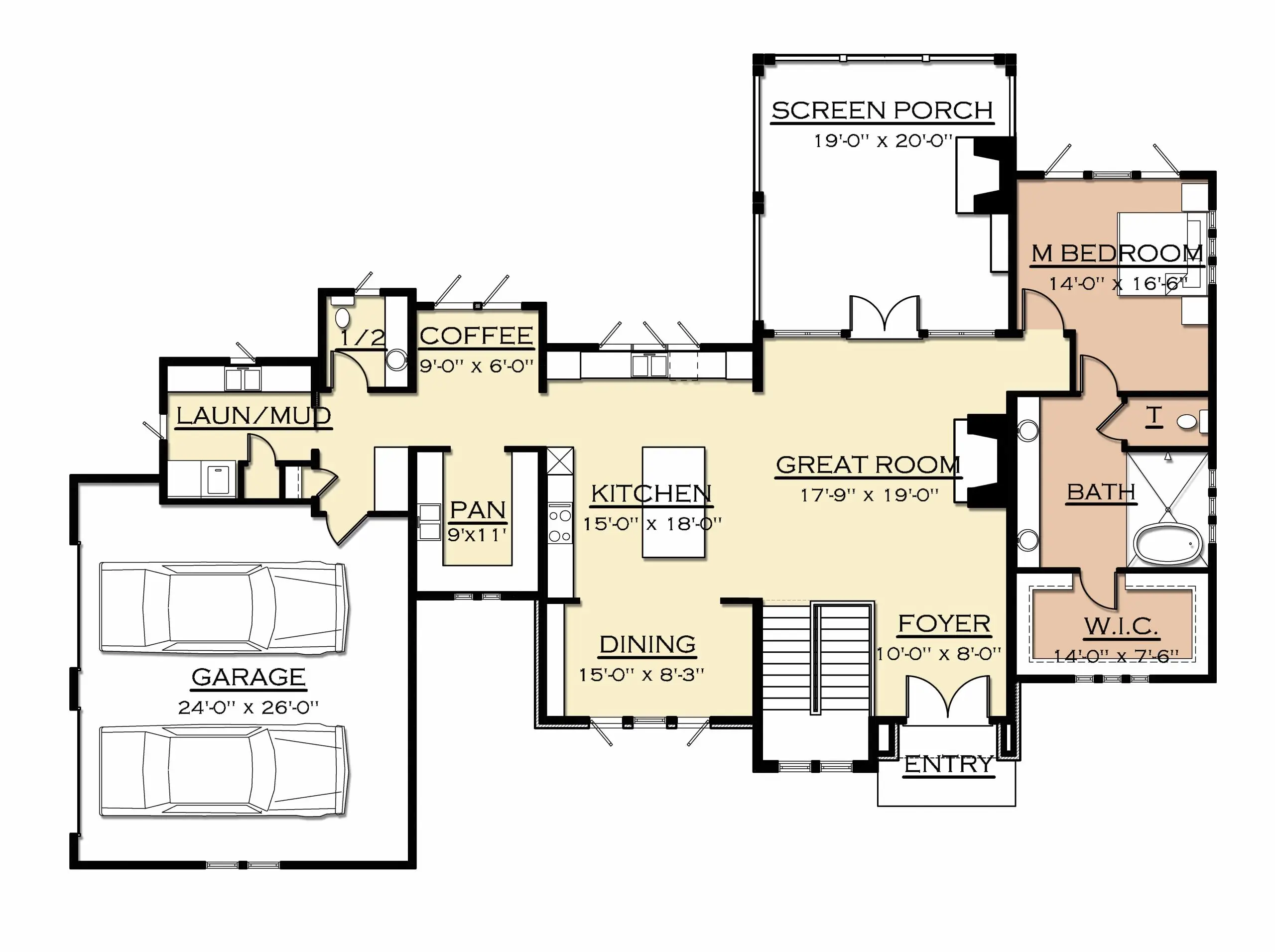
The Hampton is a refined example of transitional architecture, seamlessly blending traditional charm with contemporary sophistication. This thoughtfully designed residence features three spacious bedrooms and 3.5 elegant baths, offering both comfort and functionality. Its open floor plan creates a fluid connection between the vaulted-ceiling great room, gourmet kitchen, and cozy den, ideal for both entertaining and everyday living. The soaring ceilings and expansive windows invite natural light, enhancing the sense of space and warmth throughout.
Outside, the Hampton showcases a luxurious exterior composed of natural materials—stone, wood, and glass—that harmonize with the surrounding landscape while exuding timeless appeal. The façade balances clean lines with textured finishes, creating visual interest and curbside elegance. Inside, the design emphasizes quality craftsmanship and upscale finishes, from custom cabinetry to sleek countertops and ambient lighting.
The Hampton’s transitional style allows it to feel both grounded and fresh, appealing to a wide range of tastes. It’s a home that celebrates architectural balance—where classic elements meet modern sensibilities in a cohesive, inviting environment. Whether hosting guests or enjoying quiet moments, the Hampton offers a lifestyle of grace, comfort, and enduring beauty.

































