Custom Design Process for Modern Homes

Crafting a detailed and intricate work of art such as a custom modern designed home takes time and personal attention. Custom home design services by MossCreek let you realize your dream home as a one-of-a-kind work of art. Through this process, your Mountain Modern or Contemporary Home  is carefully designed and tailored to meet your needs and desires. Mountain Modern and Contemporary home design by MossCreek is available in two levels of service: Traditional and Comprehensive. Visit the submenu options above to discover the differences. Every MossCreek Custom Designed Home starts with the same unparalleled process.

Step 1: Onsite Review

The first step of every MossCreek custom designed home is to stand with you on your land and listen to you as you tell us what it is about this location that you fell in love with. As the conversation continues, we review the opportunities and constraints that the site brings to the project. Then we’ll discuss the hopes and dreams of the custom designed home you are looking to build, and along with you, we begin to block out a footprint of your home on the site. This way, you can be assured that we are beginning to design a home on your land that captures the best features and views that your site has to offer.

Step 2: Sketching Concept Plans and Elevations Onsite

Following the Onsite Review, the next step is to get away with you to a quiet spot and begin blocking out the concepts of your home design. Working together, you and MossCreek begin the process of taking the project from a dream – to a reality. You are part of every line we draw. At the end of the first day, we often have a nicely sketched set of concept plans and elevations.

Step 3: Refining the Design

After returning back to our office, MossCreek continues working with you to further refine the design through preliminary drawings of your custom log or timber frame home. New drawings can be e-mailed or sent overnight for quick response. We continue to work with artistic hand renderings throughout this phase so the emotion of the design is clearly expressed.

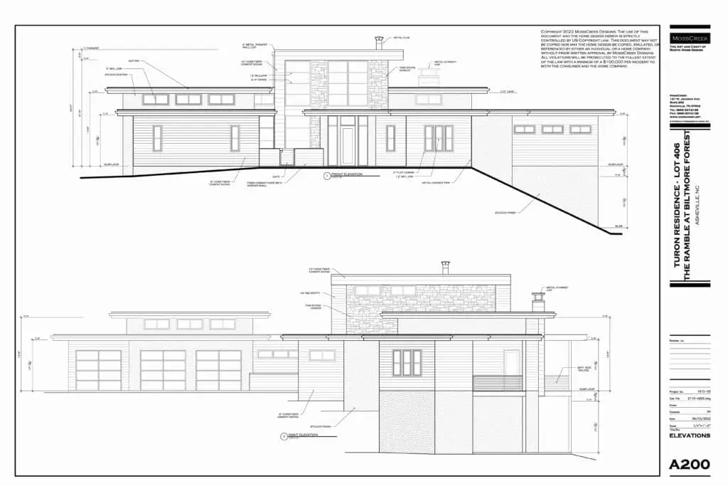
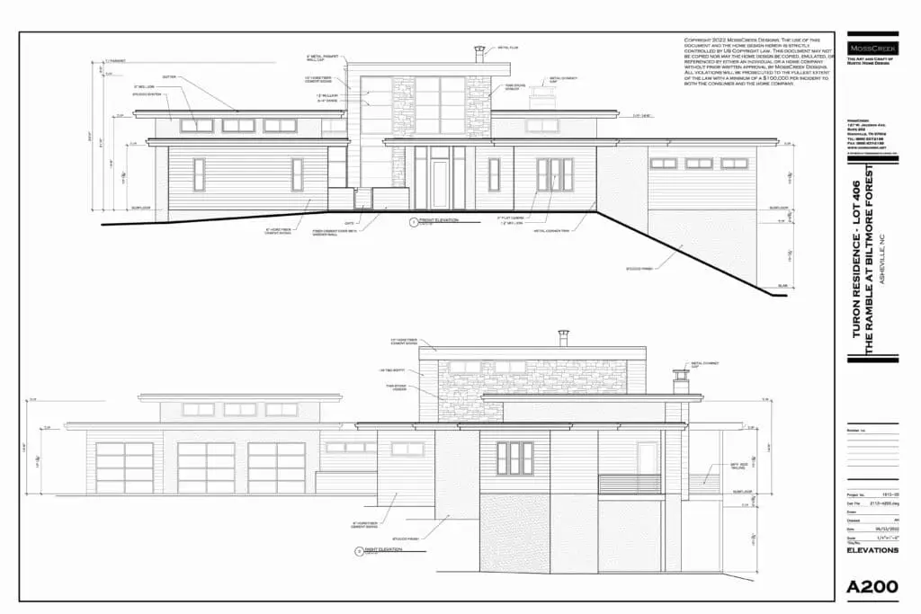
Step 4: Construction Documents

Once the preliminary designs for your custom home are approved, construction documents are prepared for the project. Drawings are prepared in AutoCAD to assure the highest level of technical accuracy. When combined with the Timber Frame or Log Provider and General Contractor’s standard means and methods, the construction documents create a road map to a successfully completed home.

MossCreek is Committed to ADA Accessibility

Even though no website is 100% ADA-Compliant, MossCreek is committed to continually working towards that goal.  We have currently reached 90% as per the IBM Equal Access Accessibility Checker and we are continuing to make our site even more accessible.