Modern European Styling at The Ramble Biltmore Forest
Architectural Review: The Ivory by MossCreek
The exterior of The Ivory presents a refined transitional style that masterfully blends traditional architectural elements with modern sensibilities. The façade features a pleasing mix of white board-and-batten and horizontal siding contrasted against dark gray/black trim, gables, and window surrounds. Stone veneer at the entry and select areas adds texture and visual weight, grounding the home in a classic sense of permanence. Prominent covered porches, arched openings, and multiple gables create a welcoming yet sophisticated curb appeal, while the deep roof overhangs and multiple chimneys enhance its substantial presence. The overall composition feels gracious and approachable — a modern family estate with timeless charm.
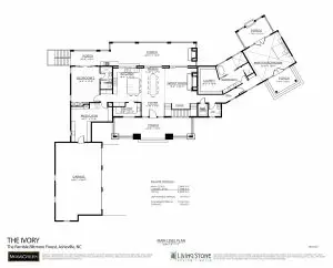
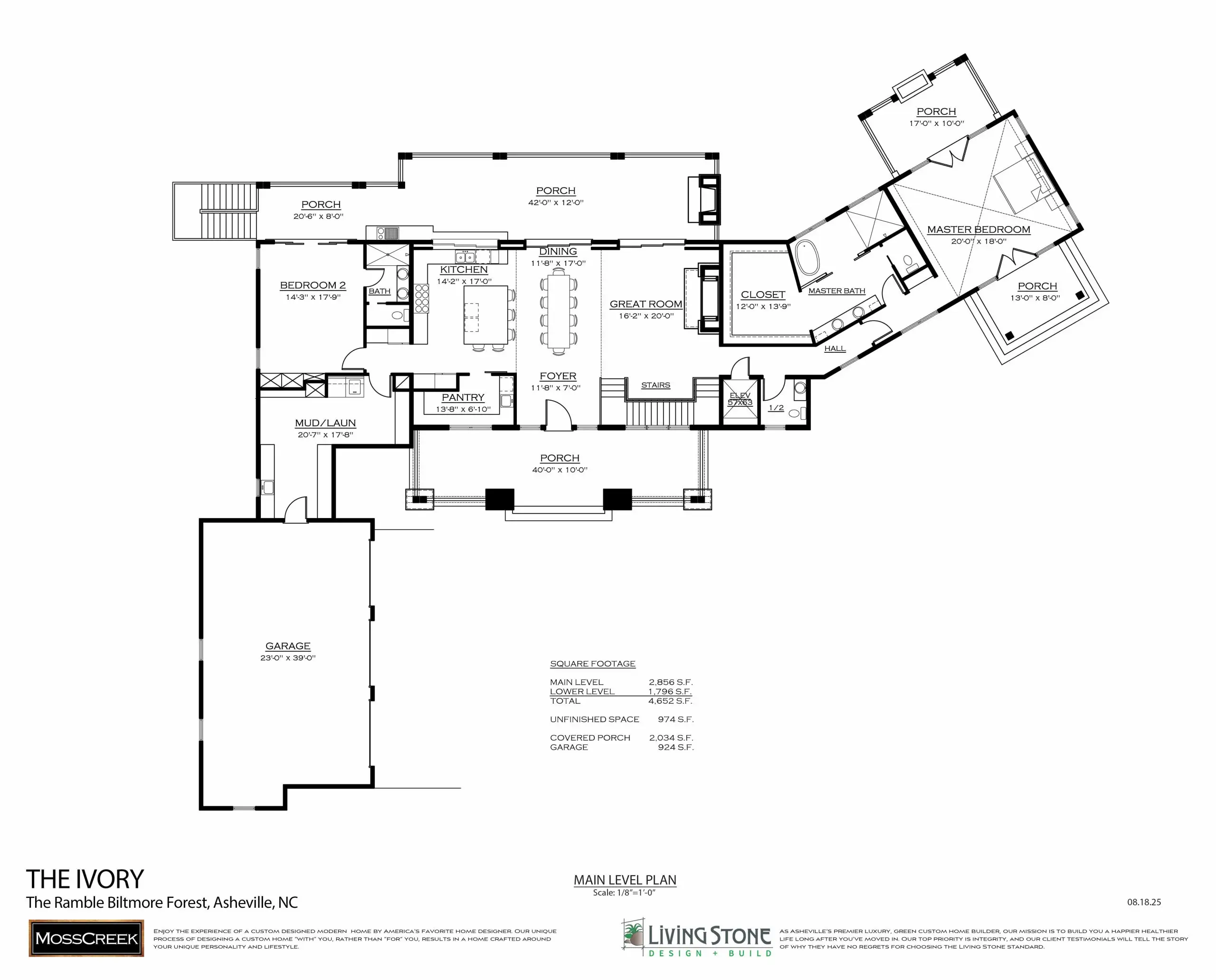
Main Level Floor Plan (2,856 sq ft)
The main level is thoughtfully organized around two primary suites positioned at opposite ends of the home, promoting excellent privacy for the homeowners or multigenerational living. This layout is particularly well-suited for aging-in-place, as both primary suites remain on the ground floor.
At the heart of the plan lies a spacious kitchen, dining area, and great room that flow seamlessly together, opening directly to large covered porches for indoor-outdoor living. The kitchen includes a generous pantry and is supported by a convenient mud/laundry room nearby. A wide foyer and staircase provide graceful circulation, while the garage connects efficiently through the mudroom.
One standout feature is the largest primary suite, which enjoys private porches on both sides and its own dedicated hallway, creating a true retreat-like experience with excellent separation from the rest of the living areas. Overall, the main level balances open-concept entertaining spaces with private retreats, making it highly functional for both daily family life and guests.
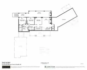
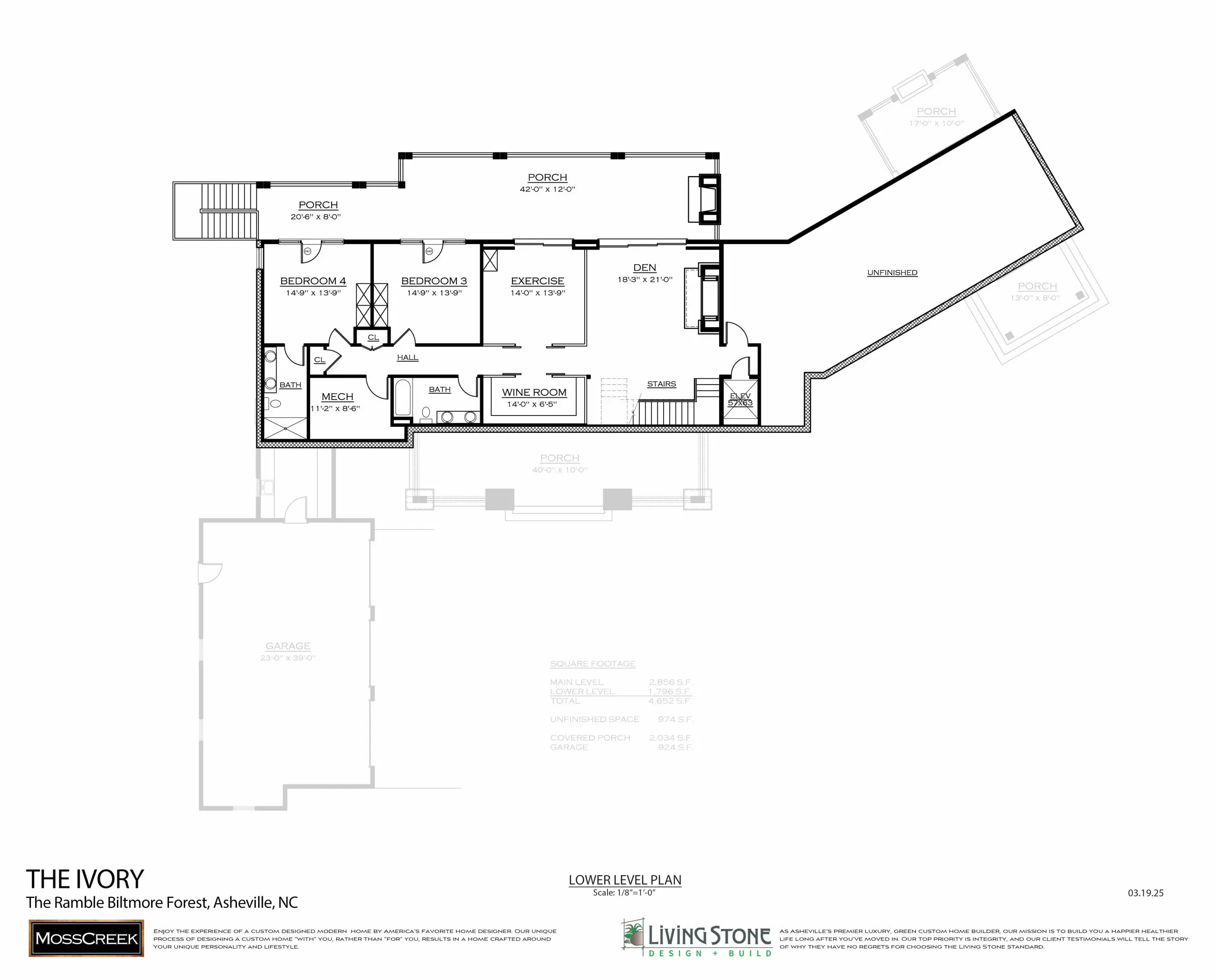
Lower Level Floor Plan (1,796 sq ft)
The lower (basement) level significantly expands the home’s versatility, adding 1,796 square feet of thoughtfully designed living space. It includes two additional bedrooms (Bedrooms 3 and 4), each with their own bathrooms, making the home a true 4-bedroom, 4.5-bath residence overall.
A large exercise room, a dedicated den, and a sizable wine room with a fireplace offer specialized spaces for wellness, relaxation, and entertaining. The lower level also features its own covered porch, providing all-weather outdoor space that complements the main level porches. Ample unfinished area remains for future expansion or storage, and the inclusion of an elevator ensures exceptional accessibility between levels — a smart feature that enhances long-term livability.
Overall Assessment
The Ivory is a highly livable 4,652-square-foot transitional home that excels in both form and function. It successfully combines elegant exterior styling with a flexible, privacy-focused floor plan that adapts well to family needs across generations. The emphasis on indoor-outdoor connection, accessibility features, and well-zoned private spaces makes it a standout design for those seeking a gracious, future-proof family home. Living Stone Design + Build has delivered a plan that feels both aspirational and highly practical.



