BEAR LAKE RUSTIC  - On The Board

MEADOW RIDGE

LAKE WOOD

LOCHSTEAD

THE FARMHOUSE

BEARWALLOW MOUNTAIN

THE DOBRO

MossCreek is Committed to ADA Accessibility

Even though no website is 100% ADA-Compliant, MossCreek is committed to continually working towards that goal.  We have currently reached 90% as per the IBM Equal Access Accessibility Checker and we are continuing to make our site even more accessible. 

Contact Us About This Home

To find out more about our services and to discuss your project, please fill out this form, including any comments or questions in the Message field.  Then press Send, and we will respond shortly. We are looking forward to working with you!

style:

alert(jQuery('#post-tags span').html());

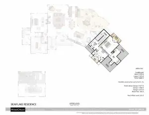
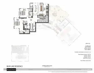
BEAR LAKE RUSTIC